티스토리 뷰
목차
반포 래미안 트리니원 분양가가 궁금하신가요?
이 글 하나면 확정 분양가부터 청약 일정, 입지 정보까지 한눈에 파악할 수 있습니다.
오늘은 반포 래미안 트리니원의 최신 분양 정보와 입지 분석, 청약 일정까지 자세히 알아보겠습니다.



반포 래미안 트리니원 개요
반포 래미안 트리니원은 서울 서초구 반포동 일대에 들어서는 반포주공1단지 3주구 재건축 단지입니다.
총 2,091세대 규모로 이 중 일반분양 물량은 506세대입니다.
📍 위치: 서울특별시 서초구 반포동 1109번지 일대
🏗 시공사: 삼성물산
🏢 규모: 총 2,091세대 (일반분양 506세대)
📅 입주 예정: 2026년 8월
강남권 핵심 입지인 반포동에 위치해 교통과 교육 인프라가 뛰어난 곳입니다.
반포주공1단지 3주구 재건축 사업으로 진행되어 조합원 분양과 일반분양으로 나뉘어 공급됩니다.
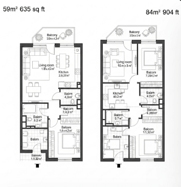
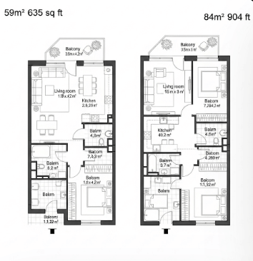
확정 분양가 및 평형별 가격
래미안 트리니원의 분양가는 분양가 상한제가 적용되어 3.3㎡당 8,484만 원으로 확정되었습니다.
이는 분양가 상한제 적용 단지 중 역대 최고가 수준입니다.
💰 확정 분양가 (평형별)
전용 59㎡(약 18평형)
확정 분양가: 약 20억 600만 원 ~ 21억 3,100만 원
3.3㎡당: 8,484만 원
일반분양: 해당
전용 84㎡(약 25평형)
확정 분양가: 약 26억 8,400만 원 ~ 27억 4,900만 원
3.3㎡당: 8,484만 원
일반분양: 해당
전용 114㎡ 이상 (약 34평형 이상)
일반분양 물량 없음 (조합원 공급만 해당)
📊 분양가 특징
일반분양은 전용 59㎡와 84㎡ 타입만 공급됩니다.
분양가 상한제가 적용되어 주변 시세 대비 낮은 가격으로 분양됩니다.
역대 분양가 상한제 적용 단지 중 가장 높은 3.3㎡당 가격으로 주목받고 있습니다.



입지 및 교통 환경
반포 래미안 트리니원은 강남권 핵심 입지와 다양한 지하철 노선을 이용할 수 있는 교통 인프라가 장점입니다.
🚇 지하철 접근성
9호선 구반포역: 가장 인접한 역 (도보 이용 가능)
4호선·9호선 동작역: 복합 환승역 이용 가능
7호선 논현역: 차량 이용 가능
신분당선 강남역: 차량으로 빠른 접근
9호선 구반포역을 중심으로 강남, 여의도 등 주요 업무 지구 접근이 편리합니다.
🚗 도로 교통
경부고속도로 서초IC까지 차량 5분 거리에 위치해 경기권 이동이 편리합니다.
반포대로, 강남대로 등 주요 간선도로 인접으로 서울 전역 접근성이 우수합니다.
한남대교, 반포대교를 통한 한강 이북 지역 이동도 빠릅니다.



생활 편의 시설
반포동은 생활 인프라가 매우 잘 갖춰진 지역으로 유명합니다.
🏫 교육 시설
초등학교: 반포초, 서래초 등 도보 통학 가능
중학교: 반포중, 서래중 인근 위치
고등학교: 세화고, 세화여고 등 학군 우수
학원가: 대치동, 반포 학원가 차량 10분 거리
강남권 3대 학군으로 손꼽히는 반포 학군에 속해 교육 환경이 뛰어납니다.
🏥 의료 시설
강남세브란스병원, 삼성서울병원 등 대형 병원이 인근에 위치해 있습니다.
🛍 쇼핑 시설
백화점: 신세계백화점 강남점 차량 5분
대형마트: 이마트, 롯데마트 인근 위치
쇼핑몰: 고속터미널 지하쇼핑몰 차량 7분
반포 한강공원: 도보로 가까운 휴식 공간



청약 일정 및 자격
래미안 트리니원은 2025년 11월 청약이 진행됩니다.
일반분양 물량이 506세대로 제한적이어서 높은 경쟁률이 예상됩니다.
📅 확정 청약 일정
분양 공고: 2025년 11월 초
특별공급 청약: 2025년 11월 10일
1순위 청약 (해당지역): 2025년 11월 11일
당첨자 발표: 청약 후 약 1주일 이내
계약: 당첨 후 약 1개월 이내
✅ 청약 자격 요건
1순위 조건:
서울시 2년 이상 거주
청약통장 가입 후 24회 이상 납입
5년 이내 당첨 이력 없음
무주택 세대 구성원
2순위 조건:
청약통장 보유자
1순위 조건 미충족자
※ 청약 전 한국부동산원 청약Home(www.applyhome.co.kr)에서 자격을 반드시 확인하세요.



시세 및 대출 정보
반포동은 강남권에서도 가장 높은 프리미엄을 형성하는 지역 중 하나입니다.
📈 주변 시세 비교
래미안 퍼스티지 (2010년 입주):
84㎡ 기준 약 35억~40억 원
3.3㎡당 약 1억 3,000만~1억 5,000만 원
아크로리버파크 (2020년 입주):
84㎡ 기준 약 38억~43억 원
3.3㎡당 약 1억 4,000만~1억 6,000만 원
분양가가 주변 시세 대비 낮아 입주 후 시세 차익이 기대됩니다.
💳 대출 규제 정보
규제지역 적용:
LTV(주택담보대출비율) 최대 50% 적용
DTI(총부채상환비율) 규제 적용
⚠️ 중요한 대출 제한 사항:
분양가가 25억 원을 초과하는 주택(전용 84㎡)의 경우, 주택담보대출 한도가 최대 2억 원으로 제한될 수 있습니다.
잔금대출 한도:
전용 59㎡: 최대 약 4억 원
전용 84㎡: 최대 약 2억 원
따라서 높은 분양가를 고려할 때 충분한 자기자본(현금 동원 능력)이 필요합니다.
청약 전 금융기관을 통해 대출 가능 금액을 미리 확인하시는 것이 중요합니다.



자주 묻는 질문
Q1. 래미안 트리니원 확정 분양가는 얼마인가요?
A. 3.3㎡당 8,484만 원으로 확정되었으며, 59㎡는 약 20억~21억 원, 84㎡는 약 26억~27억 원입니다.
Q2. 청약 일정은 언제인가요?
A. 특별공급은 11월 10일, 1순위 청약은 11월 11일에 진행됩니다.
Q3. 일반분양 물량은 얼마나 되나요?
A. 총 2,091세대 중 일반분양은 506세대이며, 전용 59㎡와 84㎡만 공급됩니다.
Q4. 청약 경쟁률은 어느 정도일까요?
A. 강남권 입지와 제한적인 일반분양 물량을 고려할 때 100:1 이상의 높은 경쟁률이 예상됩니다.
Q5. 가장 가까운 지하철역은 어디인가요?
A. 9호선 구반포역이 가장 가까우며, 4·9호선 동작역도 이용 가능합니다.
Q6. 주변 학군은 어떤가요?
A. 강남권 3대 학군인 반포 학군에 속하며, 반포초·반포중 등 우수한 학교가 많습니다.
Q7. 입주는 언제인가요?
A. 2026년 8월 입주 예정입니다.
Q8. 전매 제한은 얼마나 되나요?
A. 투기과열지구 규제로 소유권 이전등기일까지 전매가 제한됩니다.
Q9. 대출 규제는 어떻게 되나요?
A. 규제지역으로 LTV 최대 50% 적용되며, 25억 초과 주택은 대출 한도가 최대 2억 원으로 제한됩니다.
Q10. 분양 정보는 어디서 확인하나요?
A. 한국부동산원 청약Home (www.applyhome.co.kr)에서 확인할 수 있습니다.


📌 꼭 기억하세요!
✔ 확정 분양가는 3.3㎡당 8,484만 원으로 역대 최고 수준입니다
✔ 59㎡ 약 20억~21억, 84㎡ 약 26억~27억 원에 분양됩니다
✔ 특별공급 11월 10일, 1순위 청약 11월 11일에 진행됩니다
✔ 일반분양 506세대로 제한적이어서 높은 경쟁률이 예상됩니다
✔ 9호선 구반포역 인접, 4·9호선 동작역 이용 가능한 입지입니다
✔ 25억 초과 주택은 대출 한도가 최대 2억 원으로 제한됩니다
✔ 현금 동원 능력이 중요하므로 자금 계획을 미리 세우세요
✔ 2026년 8월 입주 예정이며 전매는 등기일까지 제한됩니다
청약 일정과 자격을 미리 확인하고, 대출 한도를 점검하시면 좋은 결과 있으실 거예요!